项目以“都会森林、诗意生活”为设计理念,打造包含滨河绿廊、屋顶花园、下沉广场、童梦童趣、亭台叠水、露天音乐广场等设施集餐饮、购物、休闲、娱乐、居住、办公等于一体的全龄段商业综合体,细分为商业街区与1幢星级酒店…

项目以“都会森林、诗意生活”为设计理念,打造包含滨河绿廊、屋顶花园、下沉广场、童梦童趣、亭台叠水、露天音乐广场等设施集餐饮、购物、休闲、娱乐、居住、办公等于一体的全龄段商业综合体,细分为商业街区与1幢星级酒店、3幢4.5米挑高公寓组成,整体分三大主题运营V7国际公寓、威兰商业街区、威兹俱乐部。
——威兰国际中心公寓销售热线:400-153-0352——
【微信咨询:18816634698(复制添加)】
【温馨提示:为节省您的宝贵时间,来访看房请提前预约】

项目立面以大面积的玻璃幕墙和铝板为主,道路景观以大理石为主还将打造以“春花、夏阴、秋实、冬绿”为主题的植物景观,同时与周边的商业、住宅、绿地形成互补,建设融合景观、文化、娱乐、居住等功能于一体的商业空间与滨水公园。
[项目基础参数]
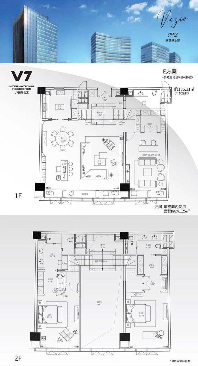
项目名称:威兰国际中心
物业类型:公寓/商业
板块占位:中心城区
占地面积:约4.6万㎡
建筑面积:约22万㎡
车位数量:1305个(含地面及地下各类型)
公寓层高:名义总高19层/单层约4.5米
公寓面积:约41㎡/52㎡/61㎡/82㎡/96㎡
梯户配比:三客梯一货梯单层18户/20户

产权年限:50年
交付时间:2025年07月31日前
交付标准:精装交付
停 车 费:待定
水 电 费:公寓水约6.5元/吨 公寓电约1元/度
物 业 费:公寓6元/㎡/月,商业地面10元/㎡/月、地下32元/㎡/月











交通配套:项目整体以三横一纵组成主要的地面交通网,三横为桃浦路、曹安路、京沪高速均横跨内环、中环与外环,可切换多条高架线路到达市区各个板块,同时邻近约600米的14号线定边路站可一线直达豫园、静安寺、陆家嘴等多个区域并可与8条轨道交通换乘到达全市各个区域。
商业配套:项目自带约8万方的商业集群,景观化餐饮夜市街区,兴趣课程体验中心、潮流酷玩、咖啡漫享、休闲会所、一站式生活卖场等一应俱全,真正做的在家门口就能提现大都市的美好。


——威兰国际中心公寓销售热线:400-153-0352——
【温馨提示:为节省您的宝贵时间,来访看房请提前预约】