上海黄浦万国府公寓怎么样!价格多少!地址

景德镇楼市发布 2026-03-05 01:40:00
用手机看
扫描到手机,新闻随时看

扫一扫,用手机看文章
更加方便分享给朋友

☎ ☎ ☎售楼处营销中心:400-688-7028 微信咨询:364317822(售楼处专属客服) ◆◆◆ 提前预约享受内部价格 ! ★★★ 售楼处真实房源!中介勿扰!

上海核心 百年外滩中央

黄浦外滩南京东路精装公寓「万国府」

☎ ☎ ☎售楼处营销中心:400-688-7028

微信咨询:364317822(售楼处专属客服)

◆◆◆ 提前预约享受内部价格 !

★★★ 售楼处真实房源!中介勿扰!

推出18席景观公寓

建面约95-260㎡奢华平层

装修私人定制 1万/㎡

单价约10-12万/㎡

明年入市 可提前预定

【万国府】实景发布:

【基础信息】

项目区域:黄浦区-外滩

面积区间:95-260m²

价格区间:单价约10-12万/㎡

层高:3.6米

电梯配比:3梯6户

物业费:35元/m²

车位费:1500元/月

交付标准:豪华装修交付

水电燃气:无燃气,水:6.5元/吨 ,电:1.2元/度

交付时间:2026年9月30号

优势:上海外滩地段,整层改造的公寓项目,豪华装修,拎包入住

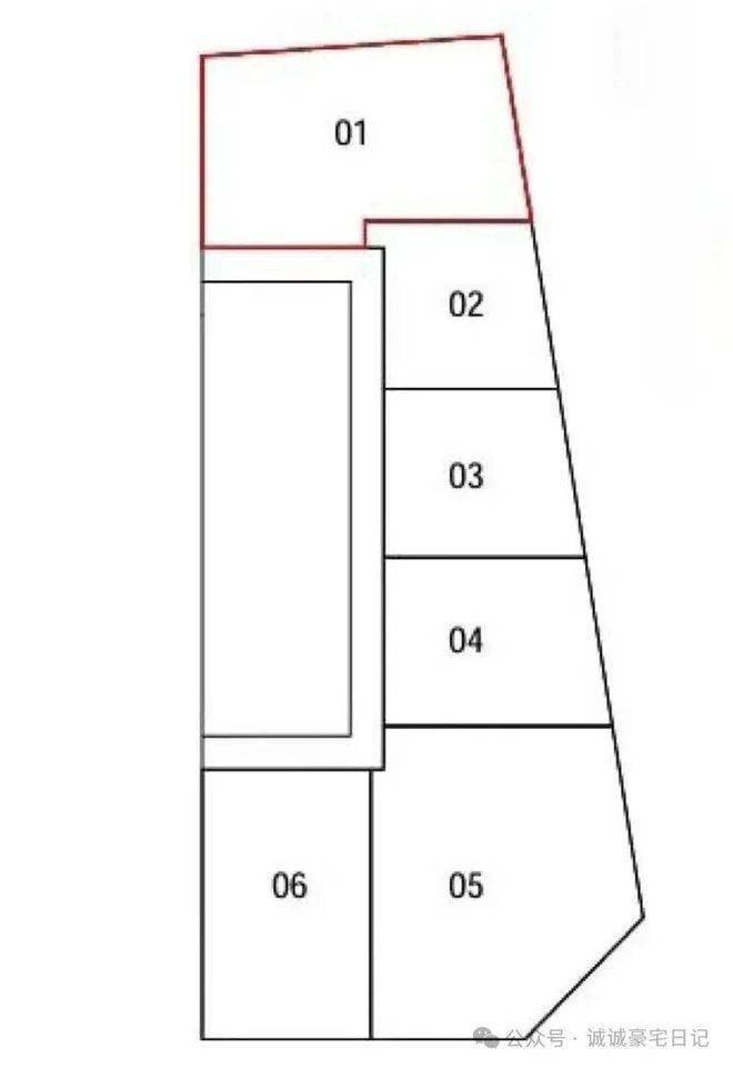
户型分布&户型图:

☎ ☎ ☎售楼处营销中心:400-688-7028

微信咨询:364317822(售楼处专属客服)

◆◆◆ 提前预约享受内部价格 !

★★★ 售楼处真实房源!中介勿扰!

样板间效果图:

☎ ☎ ☎售楼处营销中心:400-688-7028

微信咨询:364317822(售楼处专属客服)

◆◆◆ 提前预约享受内部价格 !

★★★ 售楼处真实房源!中介勿扰!

声明:本文由入驻焦点开放平台的作者撰写,除焦点官方账号外,观点仅代表作者本人,不代表焦点立场。