杭州滨江【杭州壹号院·臻奥院】楼盘信息:房价、户型、周边配套、...
扫描到手机,新闻随时看
扫一扫,用手机看文章
更加方便分享给朋友
营销中心:400-153-0352
【温馨提示:看房请提前预约,错开高峰,谢谢配合】
杭州市一线江景豪宅【壹号院·臻奥院】三期房源火爆热销中!

杭州市一线江景豪宅【杭州壹号院·臻奥院】
加推重要通知:
三期03预售面积可选:230 280 380平方,
总高25层!
4楼起1楼入户大堂,2-3楼是商场
4-16层是7户
17-25层是6户
390方预约看房下定总价区间:3500-4300万之间,
可选楼层:17,22,24楼
280方6.7楼 预售均价7万左右 。

地段:奥体焦点所向 时代中心所在
杭州,一江两翼、拥江发展,奥体博览城位于钱塘江主中心位置,承接大型体育赛事及会展盛世,打造城市的时代中心。

项目规划:时代的主场 杭州的臻奥院
项目占地面积约16.6万方,总建筑面积约97.8万方,有MU01、MU02和MU03三大地块组成,包含住宅、商业、办公等业态。项目利用地铁6、7号线交汇的空间特征,立足公共交通的高效利用展开复合型开发,对城市地面空间做出了极大的让渡,同时配置大面积的“绿色山丘”自然绿化,打造城市罕见的公园型TOD4.0。

项目优势:TOD4.0规划
项目是以日本虎之门Hills、元麻布Hills等知名都会TOD为原本,由TOD规划设计公司日建设计携手,共同提出的。TOD4.0,从之前的“站城一体化”升维到“站城人一体化”。对“人”的关注,构成了TOD4.0的核心代际区别和精髓所在。


项目优势:垂直公园商业
项目自带约7万方Shopping Mall,贯通奥体设施、奥体地下商业空间,利用轨道交通的“虹吸效应”,营造出垂直分布的商业业态,未来将通过招商打造一座城市的“生活方式中心”,我们希望能引领、驱动钱江两岸的商业活力,塑造杭州商业新标杆。


项目优势:信达 融创 滨江 联袂巨著


【臻奥院商业臻席珍藏中】
近百万方亚奥地标巨著
对望钱塘江,俯瞰城市景观
尽享区域醇熟资源配套
体验高端生活品质和服务
不限购不限贷
建筑面积约为139㎡—460㎡








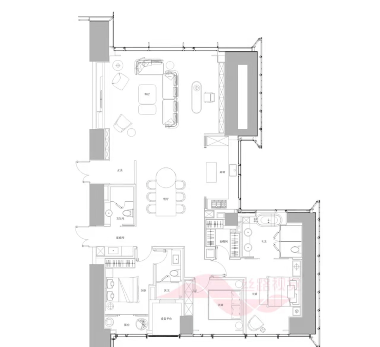
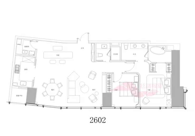
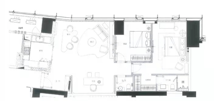
460平方户型图

278方户型图

280方户型图

180方户型图

139方户型图

【基本信息】:
【交通配套】三桥(复兴大桥、西兴大桥、彭埠大桥)、三隧道(庆春隧道、博奥隧道、望江隧道)、三地铁(2/6号线钱江世纪城站、6号线博览中心站)
【开发企业】杭州超级总埠置业发展有限公司
【物业类型】超甲级写字楼
【楼高】约200米(共40层)
【标准层面积】2760㎡
【写字楼层高】4.5米
【交付日期】2025年8月

【商业配套】:自带约4万方街区商业、约3000方国际会馆(含室内恒温泳池、健身房、董事会议室、会所沙龙、五星级大厨定制家宴包间、儿童活动室等);距SKP约1千米,距奥体印象城约2千米,跨江即至万象城、来福士。
【写字楼入户大堂效果图展示】:


杭州滨江【杭州壹号院·臻奥院】
☎☎☎营销中心:400-153-0352
【温馨提示:看房请提前预约,错开高峰,谢谢配合】
声明:本文由入驻焦点开放平台的作者撰写,除焦点官方账号外,观点仅代表作者本人,不代表焦点立场。
