该户型的面积约为525至815平方米左右。这是一处室内挑高6米的地下室客厅,同时拥有下沉式花园和采光天井。除了这些优势外,上海市还拥有许多学龄教育机构,为学生们提供了丰富多彩的教育资源。医疗服务:位于闵行区的…
上海闵行天宸国际社区别墅
——天宸艺墅合院别墅营销中心:400 153 0352(24H免费热线)——
【客户经理:18816634698(微信同号)】
【温馨提示:为节省您的宝贵时间,来访看房请提前预约】

闵行区顶级商业和院
闵行区一流的商业和住宅区
该户型的面积约为525至815平方米左右。
总共有127个选项!
A片区规划:有49套房源,B片区规划:有57套房源。
C片区规划:有14套房源,D片区规划:有7套房源。
建筑容积率仅为0.7!
主要面积525—825平方米。
设计5+1套房,让空间更具动感
豪装交付:中央新风系统和地暖也已配备完毕
空调是毛细血管三恒系统。
我们提供全天候管家服务

项目效果图
项目亮点:
目前市场上唯一的大面积合院别墅产品;
我们将策划建设一个400亩的天宸国际社区,同时配套设置超高端酒店和三级康复中心。
·靠近S4沪金高速的入口,地理位置优越可达内中环,目前正在建设银都路过江隧道,项目建成后通往浦东将更加方便。
每个住户都将获得面积为70-100平方米的私人花园,以及配备奢华装修和电梯的交付服务。
这是一处室内挑高6米的地下室客厅,同时拥有下沉式花园和采光天井。
闵行区的一流商业和住宅区

闵行区顶级商业和院
『天宸国际社区』
户型分布如下

社区实拍如下



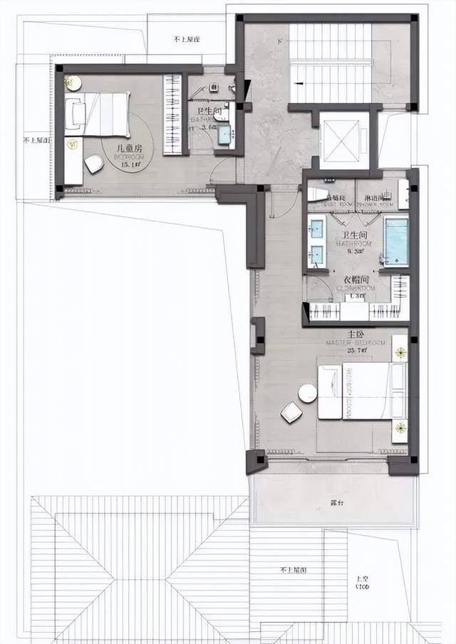
B户型图:(依次为地上一二,地下一二层)




B户型样板间品鉴 :



























闵行区顶级商业和院
『天宸国际社区』





周边配套
交通:该区域附近有地铁15号线,居民能够方便地利用“三纵两横三轨”立体交通路网进行出行。三条纵向交通干道包括沪金高速公路、虹梅高速公路和嘉闵高架路,连接繁华市中心。两条横向交通干道包括外环高速公路和申嘉湖高速公路,通达上海市的走廊。此外,1号线、5号线和15号线连接并覆盖整个城市地区。
教育:上海私立蒙特梭利幼儿园、上海闵行实验小学、上海星河湾双语学校、上海市田园高级中学等,一站式全学龄学府林立。
上海市拥有许多学龄教育机构
上海市是中国的一座现代化大城市,以其繁荣的经济、优美的环境和高素质的人才而闻名遐迩。除了这些优势外,上海市还拥有许多学龄教育机构,为学生们提供了丰富多彩的教育资源。
上海市作为一座现代化大城市,以其繁荣的经济、优美的环境和高素质的人才而广为人知。然而,除了这些优势,它还拥有许多学龄教育机构,为学生们提供了丰富多彩的教育资源。

医疗服务:位于闵行区的中心医院和复旦附属华东医院等,全天候为您的健康提供保障。

商业:仲盛世界商城、凯德龙之梦广场、天荟TODTOWN、友谊商城、百联南方购物中心、莲花国际广场、颛桥万达广场、龙盛国际广场、丰树怡丰城、麦多生活广场、绚荟城、大润发等12家商业中心矗立在这个繁华的城市中。

公园:这座公园周围环绕着8个大型公园,包括莘城中央公园、莘庄梅园、闵行体育公园、上海植物园、田园公园、梅馨陇韵、集心公园和君莲剪纸公园,与大自然的绿色环境相互辉映。

实拍图片
豪华住宅已经安装并提供全新的空气净化和地暖系统。
空调是维持室内温度和空气流动的毛细血管三恒系统。
提供24小时管家服务






稀有合院别墅位于上海星河湾旁。
花园在天地之间,充满生机和美丽。
天宸国际社区。
主要面积在525平米到825平米之间。
设计5+1套房的动态空间布局
房屋的面积大约在525到815平方米之间。
共计127套!
闵行区的商业和住宅区属于顶级水平

上海闵行天宸国际社区别墅
——天宸艺墅合院别墅营销中心:400 153 0352(24H免费热线)——
【客户经理:18816634698(微信同号)】
【温馨提示:为节省您的宝贵时间,来访看房请提前预约】
注:(免责声明:本篇分享文案非广告,所涉及的图文资料仅供参考,项目可能对项目细节等做进一步优化调整,具体以最终签订的买卖合同为准,在法律规定的范围内保有最终解释权。部分图片素材来自网络,如有侵权请联系小编删除,感谢支持。)