售楼处营销中心:400-688-7028 微信咨询:364317822(售楼处专属客服) ◆◆◆ 提前预约享受内部价格 ! ★★★
售楼处真实房源!中介勿扰!
美兰天地
果岭之上 光之别墅
美兰湖 果岭上
城市果岭·光之建筑·私人宫馆
大面积玻璃墙体城市商务行宫
建面约550~820㎡ 共34栋
总价2000-2500万
售楼处营销中心:400-688-7028
微信咨询:364317822(售楼处专属客服)
◆◆◆ 提前预约享受内部价格 !
★★★ 售楼处真实房源!中介勿扰!

美兰天地位于宝山美兰湖板块,开发商上海美兰湖房地产开发有限公司;项目占地面积约15.3万㎡、建筑面积约9.3万㎡、绿化率50%、容积率仅0.4, 由34栋别墅组成
项目位于美兰湖高尔夫球场内,主力产品:约550㎡、620㎡、830㎡,总价约1800-2500万,不限购。
售楼处营销中心:400-688-7028
微信咨询:364317822(售楼处专属客服)
◆◆◆ 提前预约享受内部价格 !
★★★ 售楼处真实房源!中介勿扰!


美兰天地采用现代极简建筑风格,外立面采用大面积玻璃,做到270°的景观视野,给到客户“室内随心设计,室外无界景观”的独特感受。

户型品鉴
建筑面积约 550㎡光之空间
售楼处营销中心:400-688-7028
微信咨询:364317822(售楼处专属客服)
◆◆◆ 提前预约享受内部价格 !
★★★ 售楼处真实房源!中介勿扰!

(样板间实景图)

(样板间实景图)

(样板间实景图)

(样板间实景图)

(样板间实景图)

(样板间实景图)
A产品|整栋建筑面积约560㎡

(效果图)

(效果图)
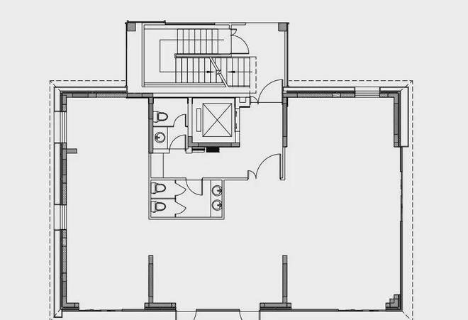
A产品一层平面图|建筑面积约168㎡

(户型平面图)
此户型对应编号为137幢56号1F,具体户型会因装修、楼栋、楼层、单元、朝向等差别,使局部结构、面积、部分窗扇位置及大小、墙壁大小及电器安装位置等略有不同。
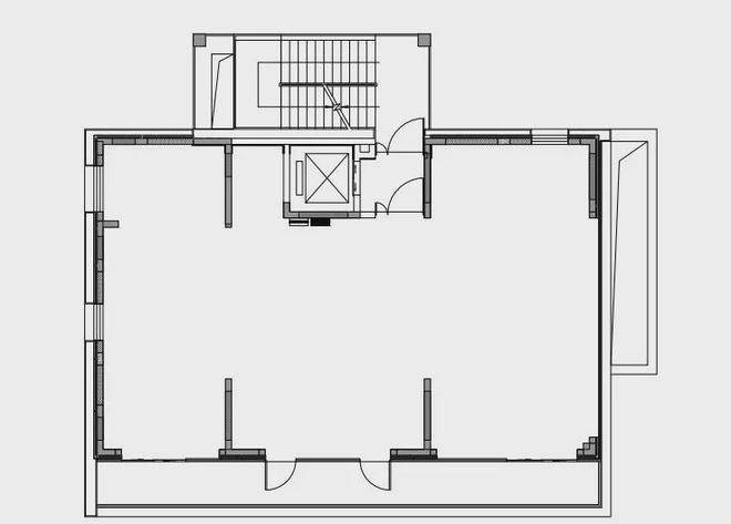
A产品二层平面图|建筑面积约194㎡

(户型平面图)
此户型对应编号为137幢56号2F,具体户型会因装修、楼栋、楼层、单元、朝向等差别,使局部结构、面积、部分窗扇位置及大小、墙壁大小及电器安装位置等略有不同。
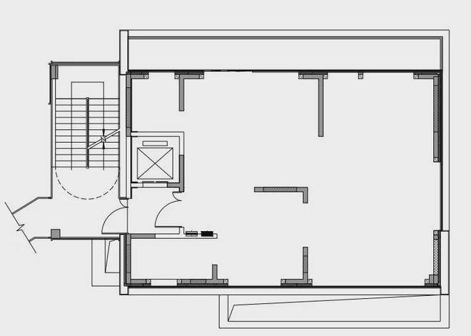
A产品三层平面图|建筑面积约194㎡

(户型平面图)
此户型对应编号为137幢56号3F,具体户型会因装修、楼栋、楼层、单元、朝向等差别,使局部结构、面积、部分窗扇位置及大小、墙壁大小及电器安装位置等略有不同。
C产品五层平面图|建筑面积约173㎡

(效果图)

(户型平面图)
此户型对应编号为150幢 86号5F,具体户型会因装修、楼栋、楼层、单元、朝向等差别,使局部结构、面积、部分窗扇位置及大小、墙壁大小及电器安装位置等略有不同。
D产品四层平面图|建筑面积约161㎡

(效果图)

(户型平面图)

预约看房
【上置鸿坤·美兰天地】
果岭之上 光之别墅
美兰湖 果岭上
城市果岭·光之建筑·私人宫馆
大面积玻璃墙体城市商务行宫
建面约550~820㎡ 共34栋
售楼处营销中心:400-688-7028
微信咨询:364317822(售楼处专属客服)
◆◆◆ 提前预约享受内部价格 !
★★★ 售楼处真实房源!中介勿扰!