无锡熊猫公寓丨4.6米复式公寓丨乐道熊猫PARK公寓楼盘介绍!

景德镇楼市发布 2026-01-23 12:12:00
用手机看
扫描到手机,新闻随时看

扫一扫,用手机看文章
更加方便分享给朋友

周边高新产业园环绕,逾500家高科技企业,超10万高薪白领人群形成庞大的高端租住需求,未来无锡高净值人群聚集地,保障了未来稳定的承租客群和租金收益。产品定位太科园顶尖科创基地专属,时尚品质SOHO,通风采光俱…

无锡「乐道熊猫公寓」

——销售中心:400 153 0352(24小时免费热线)——

【客户经理:18816634698(微信同号)】

【温馨提示:为节省您的宝贵时间,来访看房请提前预约】

万达旁 地铁口 邻经开装修现房

基本信息

【项目位置】净慧东道和震泽路交界处

【剩余套数】一期酒店式公寓约300套,二期LOFT约2000套

【总高梯户比】26层,4梯22户

【交付状态】装修

【交付时间】现房

【物 业 费】天骄物业 3.98元,水费:4.45电费:7毛5

【公共空间】萌宠乐园,烘焙空间,自住洗衣空间,电影放映室,会议室……

协信售楼中心

江苏省无锡市新吴区干城路与菱湖大道交叉口东北方向120米

选择协信的八大理由

新区政府旁 当省心房东

✅新吴核芯商务板块 极具发展潜力

✅万达广场一路之隔 自带协信星光广场商圈

✅近地铁4号线二期(在建)菁英汇聚

✅太科园10万高净值人群租客市场

✅产品类型多元化 可办公自住投资

✅酒店托底 租期长 租金高 稳定收益

✅单价不过万 优质资产 价值保障

✅装修现房 一步到位

售楼处电话:400-153-0352

万达一路之隔 地铁口 菁英SOHO

售楼处电话:400-153-0352

核芯太科园 协信定鼎未来

项目位于太科园板块正核芯,向北是新吴区人民政府及金融经济商圈,南面紧邻万达广场,向西是高房价聚集区太湖新城版块,东面是9大高新技术园区,坐拥太科园发展利好,享受经济、产业、文化多重利好辐射。

红利风口 无锡转型核心区

项目所在无锡行政高地与核心区域,是无锡产业转型先导区,共享经开区配套,环湖住区右半圈,新吴区政府驻扎,新吴区行政中心、金融商务中心、科创中心,无锡物联网中心。

太湖湾科创城中“首要工程”,太湖新城规划中“一体两翼”之“东翼”,无锡“一城两核三片六组团”发展战略核芯,无锡“南向战略”的重要组成板块。

繁华簇拥 执掌万达商圈

紧邻万达商圈,自带协信星光广场底商,规划有商业步行街、约9000㎡商业中心。辐射的太湖新城商圈拥有海岸城和金融第一街等大型商业中心,可享受其带来的繁华与物业增值。

精品配套 都市高阶生活

学校、医院、教育、生态、文化等多重配套加持,享国际化高层次生活。

✔医疗方面❱❱海力士医院,无锡市人民医院新安分院;

✔景观方面❱❱靠近太湖,拥有7公里的湖岸线,在项目高层可一览太湖风光,周边还有约34万方的慧海湾生态公园;

✔文体方面❱❱落定太科园的无锡地标性文化建筑——无锡交响音乐厅即将动工。

轨道交通 长三角一体化枢纽

项目与地铁4号线相距仅约200m,通车后将串联太科园板块、城际站区和高铁商务区,地铁3号线换乘可直达苏南硕放国际机场,苏锡支线、沪霍线可以十分钟到达苏州相城区,高效便捷苏锡常乃至长三角出行。

售楼处电话:400-153-0352

教育资源环绕 一站式教育网

区域内东南大学、波士顿国际学校、外语幼儿园、无锡外国语学校、南外国王国际学校、太科园实验小学(在建)、锡师附小联盟小学、太科园实验幼儿园(筹备中)、新吴实验小学(锡师附小联盟)的进入,形成一站式教育网。

10万高薪科技人才租住需求

周边高新产业园环绕,逾500家高科技企业,超10万高薪白领人群形成庞大的高端租住需求,未来无锡高净值人群聚集地,保障了未来稳定的承租客群和租金收益。

酒店式公寓 优选稳赢资产

产品定位太科园顶尖科创基地专属,时尚品质SOHO,通风采光俱佳,装修现房交付,空间可实现百变商住功能需求。1#维嘉酒店及5#格菲酒店日常爆满,月租可达2500元,远超片区住宅和公寓。

【项目平面图】5#5-24层

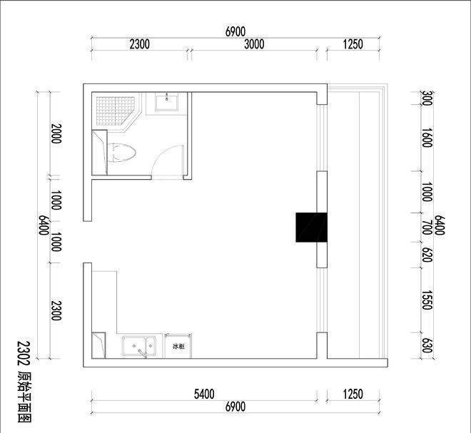
【户型鉴赏】建面约69㎡SOHO平层

【中古风装修示意图】

【户型鉴赏】建面约51㎡SOHO平层

【奶油风装修示意图】

无锡乐道熊猫公寓

——销售中心:400 153 0352(24小时免费热线)——

【客户经理:18816634698(微信同号)】

【温馨提示:为节省您的宝贵时间,来访看房请提前预约】

声明:本文由入驻焦点开放平台的作者撰写,除焦点官方账号外,观点仅代表作者本人,不代表焦点立场。