项目将推出约99-125㎡院墅产品。约126㎡的明星户型做到了5套房设计,地下一层、地上三层的空间形态,将空间尺度无限放大。项目采用院厅融合设计,将下沉式院落焕新为地上庭院,扩大院子面积,为客厅的延伸与衔接留…
封顶仪式现场来源泰禾集团工地开放日业主实地走访来源泰禾集团
谁说低预算的购房者,住不了“有天有地、有大花园、独门独户独院”的别墅?买不到真正一步到位的改善型产品?
没想到在上海!竟然还藏着一个“宝藏低密纯墅新盘”!
据官网显示,位于奉贤海湾的泰禾海上院子,已经取证,即将开启认购。记忆中这个一直是烂尾项目代表之一的盘,居然重启认购了?
——品鉴热线:400-153-0352——
【微信咨询:18816634698(复制添加)】
【温馨提示:为节省您的宝贵时间,看房请提前预约】

项目将推出约99-125㎡院墅产品。
1)在上海早已叫停了1以下容积率的土地出让时代, 项目0.5的容积率就显得弥足珍贵;
2)社区全人车分流, 车位配比高达1:2.5,自带约1800㎡五星级会所;
3)项目的核心价值就在于 “高附赠、高得房率”!让买房人少花钱住大住宅!

上海南枢纽、世界级湾区!
泰禾海上院子火热销售中
约0.5超低容积率,独门独户独院
得房率超150%,全人车分流设计
约1800㎡私享会所,满足全龄需求
约99-126㎡院墅产品
99㎡户型总价约438万起,实际可用面积270㎡左右(地上两层、地下两层)
126㎡户型总价约530万起,实际可用面积300㎡左右(地上三层、地下一层)
今年年底完成竣备,预计2025年上半年交付,具体交付时间小编一直会跟进!



项目实景图
一房一价表

『海上院子』因其开发商泰禾资金链断裂,一度陷入烂尾。
后在奉贤区政府等多方的努力下, 2023年4月,位于奉贤海湾的泰禾『海上院子』项目启动复工(现施工方为建工集团)。
在2023年3月10日发布的《上海市奉贤区住房保障和房屋管理局关于奉贤区房管局2024年工作要点》中,明确:
巩固“保交楼”成果,完成泰禾海湾项目202户交付,维护购房人合法权益。
并将完成该项工作列为区房管局年度10大重点工作首位。

据泰禾集团报道, 2024年1月30日,海上院子项目主体结构全部封顶,标志着项目自复工以来保交付取得里程碑式重大进展。

目前整个施工现场有大几百号相关人员参与建设,项目稳步推进中!
海上院子也明确,今后每月都会举行业主开放日,公示工程质量及进度,接受来自业主及各界的监督。

6月2日项目现场实拍


户型图赏鉴
约99㎡合院产品做到了地上2层,地下室挑高5.5米。
另外,超高的附赠空间便该项目是最大的亮点!
该户型可拓展出178㎡的面积!实际使用面积最高可达277㎡!
这个突破想象的赠送,也是项目能拿出超高得房率的原因!
99㎡户型平面图

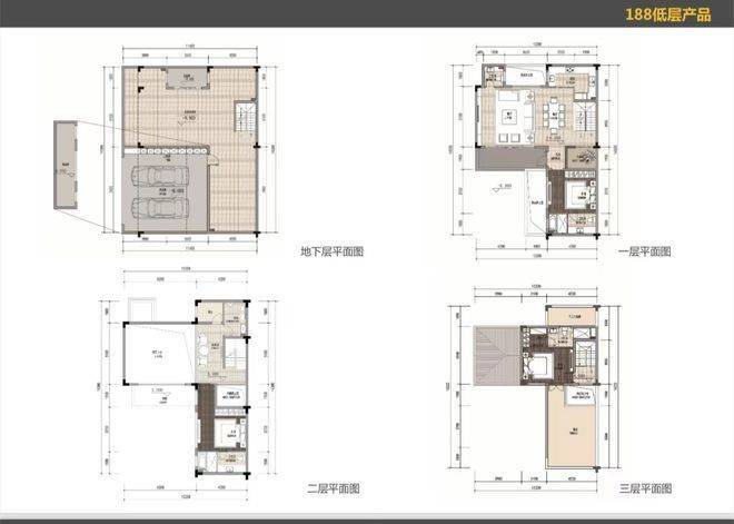
约126㎡的明星户型做到了5套房设计,地下一层、地上三层的空间形态,将空间尺度无限放大。
更难得可贵的是, 该户型可扩展出185㎡!实际使用面积最高可达311㎡!附赠率高达147%!
并且,“3+2”楼层立体分明,拥有大大小小三个不同的花园。
这无疑是将人们心中的“院子梦”发挥到淋漓尽致!
126㎡户型平面图

另外值得一提的是, 约126㎡院墅还预留了电梯空间,一键上下轻松自如。
业主可根据需求自行安装电梯,一键切换多重空间,生活场景无缝切换。
188m²户型赏鉴(仅供参考)








总得来说,一个别墅项目不仅能拥有超高的附赠率,还自带泳池会所,且可以根据自身需求加装电梯...
项目信息
泰禾海上院子,这放在全上海别墅项目中,也绝对算是独树一帜!
超高附赠率+约1800㎡泳池会所
1:2.5车位比,全人车分流设计
这样的别墅产品,未来将绝版!
最令购房者头疼的是,低预算始终无法买到真正一步到位的改善型产品,只能退而求其次选择高层住宅。
诸如东郊、佘山、马桥等0.5以下高端低密纯墅区,早已迈入3000万+时代。
而现在,一个低预算就能让改善一步到位的产品出现,你还要错过吗?!
老实说,我已经好久没有见到这样一个让我无法拒绝的别墅产品了...
项目采用院厅融合设计,将下沉式院落焕新为地上庭院,扩大院子面积,为客厅的延伸与衔接留下更多想象空间。


十大专利营造工法,“师古而不宁古”,赤诚匠心,留驻中国人心中的院子!
每一条优雅戗角,每一块石材雕砌,每一处片瓦的交叠衔接,皆如落笔于古人诗词画境中的院落。
项目实景图



悠隐于庭院、养于园林 「一轴五街八园十二巷」规划手笔,传承儒家礼序、融情江南山水,以现代造园手法,演绎东方传统园林的空间转化和进退有度。
项目效果图

一脉主轴「 江风海韵」贯穿园中十景,移步异景,获山川之怡,得林泉之趣,贤礼五街,取意儒家五常之道,家与家比邻而兴,人与人知己相交,致力于倡导当代君子的修齐治平。
项目实景图

静美八园,古雅十二巷,天地相和,纵怀游心,营造中国文人的雅趣生活场景。
项目实景图

独门独户独院的设计,让生活可以不受拘束。
在土地政策一紧再紧的情况下,独门独户独院的住宅产品,抢手几乎是市场的必然。
而独立空间与生活品质的价值,更是无法用价格来衡量。

约3500㎡的中央景观区,融汇山池、六角亭、戏台、石舫,实现一步异景的院落诗意居境。


社区内做到了全人车分流的设计,且 车位配比高达1:2.5!
项目实景图

更值得一提的是, 项目自带约1800㎡五星级会所,包含城市书房、恒温泳池、有氧健身中心等圈层生活空间,增设轻餐区、水吧区、儿童活动区等功能空间。

项目实景图

尊崇服务,礼遇世家名流!
品质生活,优先礼遇。海上院子首席服务官前置化首席服务官, 每户业主一份服务专案,打造物业+营销+首席服务官三位一体的管家团队,从交付前到入住后全面定制化服务,为新老业主带来贴心温暖的服务体验。

生活配套
交通方面:最大的变化莫过于【奉贤线】,前段时间有很多报导说【奉贤线】被搁置了,其实是误传。
奉贤方面,在今年的两会中,区长王益群表示:要凝聚多方合力,推动锁定重大交通网络规划,争取沪乍杭高铁奉贤设站、轨交奉贤快线尽快落地。
可见奉贤线并未停滞不前,而关于此次“被除名”,我们推测背后的原因可能是南北快线的深化调整。
奉贤线的性质是市域铁路,相较于地铁,车速更快、站距更大,可以助力新城快速联系市区、国际枢纽。
海湾快线已通车,高效拉近海湾与南桥的时间距离;S3高速主线通车,全面对接浦东周浦康桥;市域铁路奉贤线推进,将联动机场联络线,直接换乘通达上海两大机场。

教育方面:大学城内名校环立,上师大附属实验小学、附属实验中学、上师大第四附属中学等名校环绕,幼、小、初、高一站式配置,迭新精英优质教育。

商业方面:佳源梦想广场、易乐惠海湾菜市场、乐汇购物广场 、莘度美食街,维也纳国际酒。

医疗方面:项目附近有卫生院,轻微的伤风感冒步行即可就诊,另有奉贤海湾医院等为您及家人的身体健康保驾护航。

生态休闲:松声马术俱乐部、海湾高尔夫俱乐部、黄金海岸度假村等奢适配套,临近4A级景区碧海金沙、海湾国家森林公园等城市绿肺。

——品鉴热线:400-153-0352——
【温馨提示:为节省您的宝贵时间,看房请提前预约】