上海嘉定威兰国际中心 - 悦合国际广场公寓销售中心 - 周边环境 - 户型配套!

景德镇楼市发布 2026-01-20 06:35:00
用手机看
扫描到手机,新闻随时看

扫一扫,用手机看文章
更加方便分享给朋友

项目以“都会森林、诗意生活”为设计理念,打造包含滨河绿廊、屋顶花园、下沉广场、童梦童趣、亭台叠水、露天音乐广场等设施集餐饮、购物、休闲、娱乐、居住、办公等于一体的全龄段商业综合体,细分为商业街区与1幢星级酒店…

上海·中心城区︱核心生活圈︱城区新地标

V7国际公寓·威兰商业街区·威兹俱乐部

14号线地铁口,自带8万方商业综合体,管家式物业服务+梯控+24小时安保,面积40-96平LOFT公寓

——销售热线:400-153-0352——

【客户经理:18816634698(微信同号)】

【温馨提示:为节省您的宝贵时间,来访看房请提前预约】

项目卖点:

上海目前唯一全新在售大型综合体项目

无需改造全新公寓户型,独立上下水

环境、品质、配套、房源堪称最优

1.板块优:中外环之间,北虹桥核心板块

2.交通好:近地铁多条高架环绕

3.价值佳:小面积,低总价入手门坎底

4.户型好:双层设计,得房率高空间最大化

5.精装优:室全套硬装+一线品牌厨卫家居

6.配套全:8万方商业衣食住行全式解决

7.服务好:管家式物业服务+梯控+24小时安保

[项目基础参数]

项目名称:威兰国际中心

物业类型:公寓/商业

板块占位:中心城区

占地面积:约4.6万㎡

建筑面积:约22万㎡

车位数量:1305个(含地面及地下各类型)

公寓层高:名义总高19层/单层约4.5米

公寓面积:约41㎡/52㎡/61㎡/82㎡/96㎡

梯户配比:三客梯一货梯单层18户/20户

产权年限:50年

交付时间:2025年07月31日前

交付标准:精装交付

停 车 费:待定

水 电 费:水6.9元/吨 电0.9元/度

物 业 费:公寓6元/㎡,商业地面15元/㎡地下25元/㎡

——销售热线:400-153-0352——

【温馨提示:为节省您的宝贵时间,看房请提前预约】

[项目介绍]

项目以“都会森林、诗意生活”为设计理念,打造包含滨河绿廊、屋顶花园、下沉广场、童梦童趣、亭台叠水、露天音乐广场等设施集餐饮、购物、休闲、娱乐、居住、办公等于一体的全龄段商业综合体,细分为商业街区与1幢星级酒店、3幢4.5米挑高公寓组成,整体分三大主题运营V7国际公寓、威兰商业街区、威兹俱乐部。

项目立面以大面积的玻璃幕墙和铝板为主,道路景观以大理石为主还将打造以“春花、夏阴、秋实、冬绿”为主题的植物景观,同时与周边的商业、住宅、绿地形成互补,建设融合景观、文化、娱乐、居住等功能于一体的商业空间与滨水公园。

实景外观:

交通配套:

项目整体以三横一纵组成主要的地面交通网,三横为桃浦路、曹安路、京沪高速均横跨内环、中环与外环,可切换多条高架线路到达市区各个板块,一纵为外环高架路贯穿全市各区,项目距人民广场约13公里,自驾可到达虹桥枢纽、可上中环、可到达内环,同时邻近约600米的14号线定边路站可一线直达豫园、静安寺、陆家嘴等多个区域并可与8条轨道交通换乘到达全市各个区域,便捷的交通出行不仅给项目带来源源不断的人气从而也会导入大量的人口入住。

生活配套:

项目自带约8万方的商业集群, 景观化餐饮夜市街区, 兴趣课程体验中心、潮流酷玩、咖啡漫享、休闲会所、一站式生活卖场等一应俱全,真正做的在家门口就能提现大都市的美好。

[生态设施]

项目西侧紧邻栅桥公园与项目一桥之隔,公园内地形高低错落,景观道路与景观休憩建筑相呼应,公园里既有亭台楼阁,又有小桥流水,徜徉于此,可在喧嚣的都市生活圈里感受到别样的绿意盎然,园内还一棵树龄达700余年的古银杏树,列入上海市一级保护名录,见证时代沧桑巨变。

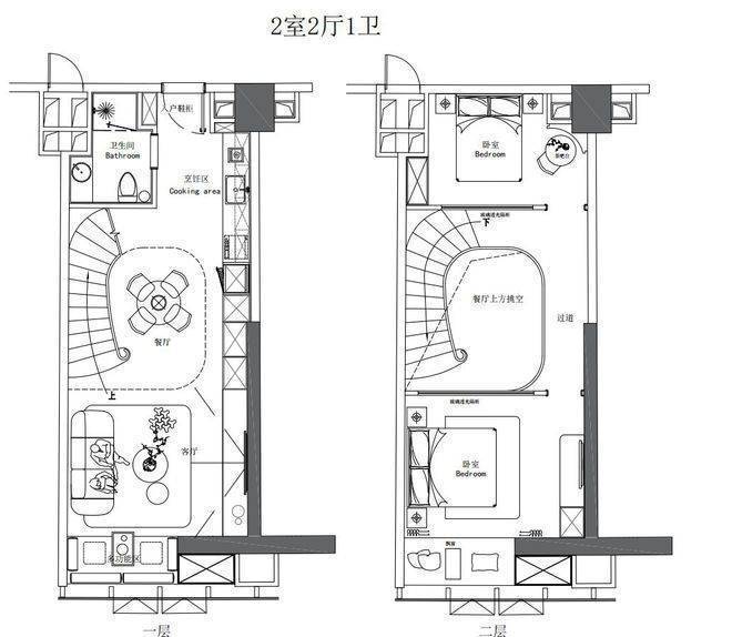
户型装标品鉴:

户内大面积开窗,满足每个空间阳光,独立入户玄关,尊享归家仪式感,主卧私密大采光面大面宽奢房设计,餐、客厅独立,客厅4.5米挑空尊享奢华感。

独立入户玄关,入户后4.5米挑空餐厅设计彰显奢华感,餐客厅独立公区分明,房间大面宽、大面积开窗比尊享舒适

——销售热线:400-153-0352——

【客户经理:18816634698(微信同号)】

【温馨提示:为节省您的宝贵时间,来访看房请提前预约】

声明:本文由入驻焦点开放平台的作者撰写,除焦点官方账号外,观点仅代表作者本人,不代表焦点立场。