黄浦外滩南京东路精装公寓「万国府」
——上海黄浦外滩万国府公寓销售中心:400-153-0352(24小时免费热线)——面积区间:95-260m² 优势:上海外滩地段,整层改造的公寓项目,豪华装修,拎包入住—…
上海核心 百年外滩中央
黄浦外滩南京东路精装公寓「万国府」
——上海黄浦外滩万国府公寓销售中心:400-153-0352(24小时免费热线)——
《客户经理:18816634698(微信同号)》
【温馨提示:为节省您的宝贵时间,来参看房请提前预约】

推出18席景观公寓
建面约95-260㎡奢华平层
装修私人定制 1万/㎡
单价约10-12万/㎡
明年入市 可提前预定
【万国府】实景发布:


【基础信息】
项目区域:黄浦区-外滩
面积区间:95-260m²
价格区间:单价约10-12万/㎡
层高:3.6米
电梯配比:3梯6户
物业费:35元/m²
车位费:1500元/月
交付标准:豪华装修交付
水电燃气:无燃气,水:6.5元/吨 ,电:1.2元/度
交付时间:2026年9月30号
优势:上海外滩地段,整层改造的公寓项目,豪华装修,拎包入住
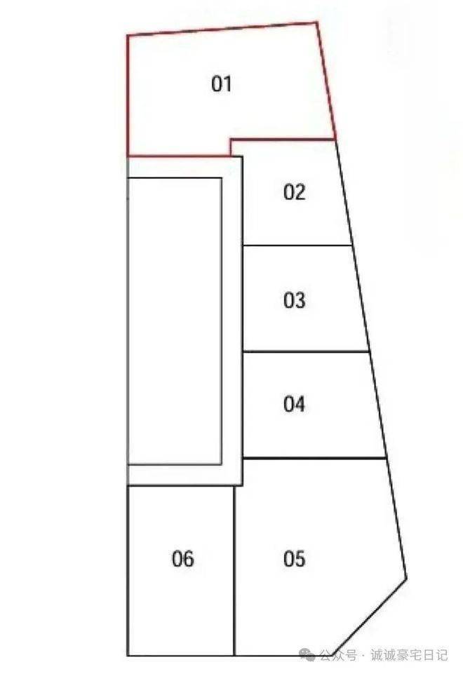
户型分布&户型图:







样板间效果图:






——上海黄浦外滩万国府公寓销售中心:400-153-0352(24小时免费热线)——
《客户经理:18816634698(微信同号)》
【温馨提示:为节省您的宝贵时间,来参看房请提前预约】





——上海黄浦外滩万国府公寓销售中心:400-153-0352(24小时免费热线)——
《客户经理:18816634698(微信同号)》
【温馨提示:为节省您的宝贵时间,来参看房请提前预约】











上海核心 百年外滩中央
「万国府」
推出18席景观公寓
建面约95-260㎡奢华平层
装修私人定制 1万/㎡
单价约10-12万/㎡
——上海黄浦外滩万国府公寓销售中心:400-153-0352(24小时免费热线)——
《客户经理:18816634698(微信同号)》
【温馨提示:为节省您的宝贵时间,来参看房请提前预约】