上海嘉定威兰国际中心楼盘详情 - 配套 - 电话 - 交房时间

景德镇楼市发布 2026-02-20 22:06:22
用手机看
扫描到手机,新闻随时看

扫一扫,用手机看文章
更加方便分享给朋友

除了便捷的交通,威兰国际中心还自带12万方的商业综合体,全业态覆盖,满足居民购物、餐饮、娱乐等多元化需求。该综合体在布局上巧妙划分为两大核心区域:一是充满活力的商业街区,二是由1座星级精品酒店与3栋拥有4.5…

上海嘉定区威兰国际中心

——威兰国际中心售楼处电话:400 153 0352(24小时免费热线)——

【客户经理:18816634698(微信同号)】

【温馨提示:为节省您的宝贵时间,来访看房请提前预约】

上海中心城区的新生活典范

在上海这座繁华的都市心脏地带,威兰国际中心傲然矗立,成为中心城区一颗璀璨的新星。这里,不仅是核心生活圈的缩影,更是城区新地标的象征。V7国际公寓、威兰商业街区与威兹俱乐部,三大板块交相辉映,共同编织出一幅现代都市生活的绚丽画卷。

上海威兰国际中心

上海威兰国际中心项目概况

城市坐标:位于嘉定、普陀、长宁三区交界处,毗邻14号线定边路站

复合业态:包含3栋4.5米层高(41-96㎡)、约8万㎡商业集群及星级酒店,配套、等设施。LOFT公寓下沉广场屋顶花园

交付参数:,水6.9元/吨,电0.9元/度,物业费6元/㎡·月,产权50年。

核心产品与运营特色

LOFT设计:约4.5米挑高空间,提供39-96㎡多种户型,采用(单层18-20户)。三客梯一货梯配置

商业配套:规划、、三大主题区,含与。国际美食 文娱体验24小时餐饮夜市露天音乐广场

智慧服务:配备及,提供。人脸识别梯控系统,24小时安保

管家式物业服务

【都会森林中的精奢之作】

走进威兰国际,仿佛置身于一片都市森林之中。万洲竣林以其独特的绿色生态理念,为这座城市带来一抹清新的绿意。而威兰国际中心的精奢作品,则在这片绿意盎然中悄然绽放,以其精致的设计和奢华的品质,吸引着城市精英的目光。

✨【全新开售,全城瞩目】✨

如今,威兰国际中心的全新精奢作品正式开售。建面约39㎡至96㎡的精装奢感LOFT,以其独特的空间设计和高品质的装修标准,满足了现代人对居住空间的多元化需求。全城盛启,只待有识之士的青睐。

【地理位置优越,交通便利】

威兰国际中心地处真新板块正核心,毗邻嘉定、普陀、长宁三大区的交汇处。这里不仅是城市发展的热土,更是交通网络的枢纽。地铁14号线定边路地铁口近在咫尺,轻松连接城市各大区域。中环旁的优越位置,更是让这里的出行变得无比便捷。

️【商业配套完善,业态丰富】️

除了便捷的交通,威兰国际中心还自带12万方的商业综合体,全业态覆盖,满足居民购物、餐饮、娱乐等多元化需求。无论是时尚购物还是休闲放松,这里都能找到属于你的那份惬意与满足。

【在售体量庞大,选择多样】

目前,威兰国际中心在售体量高达600多套,丰富的户型选择让每一位购房者都能找到心仪的家园。无论是单身贵族还是温馨家庭,这里都能满足你对理想居住空间的所有想象。

威兰国际中心,一个集居住、商业、休闲于一体的现代化都市综合体,正以全新的姿态迎接每一位城市追梦人的到来。在这里,你将开启一段全新的都市生活旅程,感受前所未有的生活品质与便捷体验。

[项目卖点] 上海目前唯一全新在售大型综合体项目 无需改造全新公寓户型,独立上下水 环境、品质、配套、房源堪称最优 22万方多维园林景观综合体住区 邻水、邻公园惬意居住品质

1.板块优:中外环之间,北虹桥核心板块

2.交通好:近地铁多条高架环绕

3.价值佳:小面积,低总价入手门坎底

4.户型好:双层设计,得房率高空间最大化

5.精装优:室全套硬装+一线品牌厨卫家居

6.配套全:8万方商业衣食住行全式解决

7.服务好:管家式物业服务+梯控+24小时安保

该项目秉承“都会中的森林,诗意盎然的生活”这一核心理念,精心规划并构建了一系列融自然美景与都市生活为一体的设施,涵盖了滨河绿色长廊、屋顶空中花园、下沉式休闲广场、儿童梦幻乐园、叠水亭台景观以及露天音乐汇演广场等多元空间。这些设施共同编织成一个集餐饮享受、购物体验、休闲放松、娱乐消遣、品质居住与高效办公等多功能于一体的全方位商业综合体,专为全年龄段人群量身定制。

该综合体在布局上巧妙划分为两大核心区域:一是充满活力的商业街区,二是由1座星级精品酒店与3栋拥有4.5米挑高空间的公寓楼群组成的居住与办公区域。整体运营策略则围绕三大主题展开:V7国际公寓,以其独特的国际风范吸引全球精英;威兰商业街区,融合传统与现代,打造别具一格的购物休闲天堂;威兹俱乐部,则是专为追求高品质生活方式的会员提供的专属社交平台。

项目立面以大面积的玻璃幕墙和铝板为主,道路景观以大理石为主还将打造以“春花、夏阴、秋实、冬绿”为主题的植物景观,同时与周边的商业、住宅、绿地形成互补,建设融合景观、文化、娱乐、居住等功能于一体的商业空间与滨水公园。

交通优势概览

该项目坐拥四通八达的地面交通网络,其核心由“三横一纵”构成。所谓“三横”,即桃浦路、曹安路与京沪高速,这三条主干道如彩虹般横跨内环、中环与外环,仿佛城市的血脉,无缝对接多条高架线路,轻松抵达市区的每一个角落。而“一纵”则是外环高架路,它如同城市的脊梁,贯穿全城,连接各个区域。

此外,项目还与地铁14号线定边路站近在咫尺,距离不过约600米。这条地铁线路如同一条穿越时空的纽带,一线直达豫园的古色古香、静安寺的庄严肃穆、陆家嘴的摩天大楼,让居住者尽享都市生活的丰富多彩。更值得一提的是,14号线还可与8条其他轨道交通线路实现便捷换乘,轻松到达全市各个区域,无论是商务出行还是休闲旅游,都能随心所欲,畅通无阻。

如此便捷的交通出行条件,不仅为项目带来了络绎不绝的人气,更将吸引大量人口入驻,共同见证这座城市的繁华与活力。

[生活配套] 项目自带约8万方的商业集群, 景观化餐饮夜市街区, 兴趣课程体验中心、潮流酷玩、咖啡漫享、休闲会所、一站式生活卖场等一应俱全,真正做的在家门口就能提现大都市的美好。

绿意悠长的生态栖息地

于项目的西侧边界,栅桥公园以一座桥梁之距,静静地与其相邻,仿佛是都市喧嚣中的一抹宁静绿洲。公园内地势起伏,错落有致,巧妙地铺展出一幅生动的自然画卷。景观小径蜿蜒曲折,与散布其间的休憩亭台相互映衬,勾勒出一种和谐共生的美妙景致。

漫步其间,游人既能领略到古朴典雅的亭台楼阁,又能感受到细腻灵动的小桥流水,仿佛穿越时空,置身于古典园林的诗意之中。在这片繁华都市中的隐秘角落,每一寸土地都散发着自然的韵味,让人在不经意间忘却尘世的烦恼,沉醉于这份难得的绿意盎然。

尤为值得一提的是,公园内还屹立着一棵历经700余年风雨的古银杏树。它不仅是岁月的见证者,更是历史的守护者,被列为上海市一级保护名录,彰显着其不可替代的生态与文化价值。每当秋风起时,满树的金黄落叶如同时间的碎片,轻轻飘落,铺就一条通往过去的回忆之路。这棵古树,以其独有的方式,诉说着过往的沧桑巨变,也激励着人们珍惜眼前的美好时光。

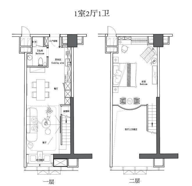
[户型装标品鉴] (A方案装标示意图) 1室2厅1卫 2室2厅2卫 3+1室2厅2卫(两套拼) 3+1室2厅3卫(四套拼) 3+1室2厅3卫(三套拼) 感谢关注支持,信息仅供参考,装修图片展示不作为交付依据,静待您的参观!

——威兰国际中心售楼处电话:400 153 0352(24小时免费热线)——

【客户经理:18816634698(微信同号)】

【温馨提示:为节省您的宝贵时间,来访看房请提前预约】

声明:本文由入驻焦点开放平台的作者撰写,除焦点官方账号外,观点仅代表作者本人,不代表焦点立场。