万国府上海黄浦-万国府楼盘详情-外滩中央大楼推出18席景观公寓!

景德镇楼市发布 2026-01-06 06:27:00
用手机看
扫描到手机,新闻随时看

扫一扫,用手机看文章
更加方便分享给朋友

黄浦外滩南京东路精装公寓「万国府」 ——上海黄浦外滩万国府公寓销售中心:400-153-0352(24小时免费热线)——面积区间:95-260m² 优势:上海外滩地段,整层改造的公寓项目,豪华装修,拎包入住—…

上海核心 百年外滩中央

黄浦外滩南京东路精装公寓「万国府」

——上海黄浦外滩万国府公寓销售中心:400-153-0352(24小时免费热线)——

《客户经理:18816634698(微信同号)》

【温馨提示:为节省您的宝贵时间,来参看房请提前预约】

推出18席景观公寓

建面约95-260㎡奢华平层

装修私人定制 1万/㎡

单价约10-12万/㎡

明年入市 可提前预定

【万国府】实景发布:

【基础信息】

项目区域:黄浦区-外滩

面积区间:95-260m²

价格区间:单价约10-12万/㎡

层高:3.6米

电梯配比:3梯6户

物业费:35元/m²

车位费:1500元/月

交付标准:豪华装修交付

水电燃气:无燃气,水:6.5元/吨 ,电:1.2元/度

交付时间:2026年9月30号

优势:上海外滩地段,整层改造的公寓项目,豪华装修,拎包入住

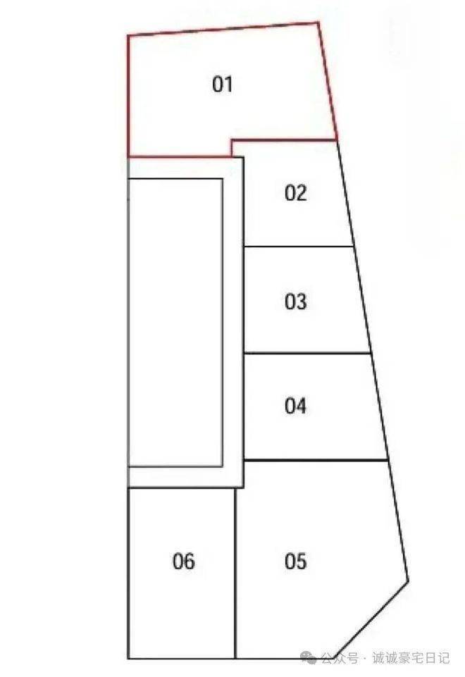
户型分布&户型图:

样板间效果图:

——上海黄浦外滩万国府公寓销售中心:400-153-0352(24小时免费热线)——

《客户经理:18816634698(微信同号)》

【温馨提示:为节省您的宝贵时间,来参看房请提前预约】

——上海黄浦外滩万国府公寓销售中心:400-153-0352(24小时免费热线)——

《客户经理:18816634698(微信同号)》

【温馨提示:为节省您的宝贵时间,来参看房请提前预约】

上海核心 百年外滩中央

「万国府」

推出18席景观公寓

建面约95-260㎡奢华平层

装修私人定制 1万/㎡

单价约10-12万/㎡

——上海黄浦外滩万国府公寓销售中心:400-153-0352(24小时免费热线)——

《客户经理:18816634698(微信同号)》

【温馨提示:为节省您的宝贵时间,来参看房请提前预约】

声明:本文由入驻焦点开放平台的作者撰写,除焦点官方账号外,观点仅代表作者本人,不代表焦点立场。