上海威兰国际中心丨更懂生活的理想家丨嘉定V7国际公寓欢迎您!
扫描到手机,新闻随时看
扫一扫,用手机看文章
更加方便分享给朋友
家,可以面积不大,但需要“五脏俱全”!就像威兰国际中心的百变空间。约4.5米挑高设计,带来生活的纵向衍生。在上海这样一座繁华大都市中,拥有一个属于自己的理想空间,或艺术创作、或舒适居家。在这里,每一种精彩都是独属于自己的天地。




至家时通常刚刚薄暮,绿荫下的小家透出暖色灯光,大堂里吊灯光华四射,有一种欢迎归家的暖意涌来。关上门,端上煮好的咖啡,倚窗而立。楼下,刚用完晚饭的一家人,正在公园散步,说说笑笑,远处的城市霓虹倒映在眼前,品味着咖啡芬芳,享受夜的宁静。
周末阳光明媚,用上精心设计的厨房空间,约上三两个好友,做一顿美味的午餐;或是享受一人的独处时光,品尝一下楼下烘焙坊刚出炉的甜品,威兰国际中心41-96㎡法式LOFT,原来生活可以如此精致。



清晨,步行几分钟坐上地铁14号线,无需换乘,可直达陆家嘴,准时到公司打卡。想去豫园、大世界逛逛也没有顾虑,都在14号线沿线。工作出差,出门就上外环,约20分钟抵达虹桥枢纽,更是无缝衔接京沪高速,畅达各地。
中外环板块,临外环高速、地处上海市连通长三角的西北门户,形成了三横一纵的立体交通网络(桃浦路、曹安公路、京沪高速、外环高速)。周边拥有公交站10+,多条公交线路交汇。



工作之余的生活也可以精致优雅,享受惬意舒适的休憩时间。项目自带7.8万方跨城购物广场,未来将云集精品超市、国际影城、健身房、美食餐厅、休闲小吃、潮奢名品店等国内外知名商家。休闲品茗、友人聚会,一站式都市生活场。
下班过后,与好友相约逛街,楼下就是购物中心(招商中),周边还汇聚多个商圈。或是在闲暇的漫长周末,去影城,挑选一部喜欢的电影,品味电影里的人生百味,感受一场视听盛宴。
在威兰国际中心的私享天地里,去用心感受生活的种种美好,也能在忙碌的工作之余,不忘追求精致的生活态度。



城市绿肺,周边众多公园林立。项目西侧紧邻栅桥公园,与项目仅一桥之隔,公园内地形高低错落,景观道路与景观休憩建筑相呼应,公园里既有亭台楼阁,又有小桥流水。
城市隐秘绿洲,徜徉于此暂别浮世繁华,可在喧嚣的都市生活圈里感受别样的绿意盎然,园内更有一棵树龄达700余年的古银杏树,列入上海市一级保护名录,以及源自北宋年间的永镇桥,见证时代的沧桑巨变。

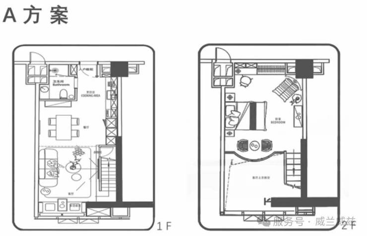
【户型装标品鉴】




(装修示意图)
来威兰国际中心,享受生活的自在惬意。建筑面积约41-96㎡精装挑高小户型,出租自住两相宜,项目火热销售中,恭迎品鉴!

温馨提示:
1、本项目推广名为“威兰国际中心”,备案名为“悦合国际”(沪(2025)嘉字不动产权第010014号);
2、文章图片来源于网络图片及相关宣传资料等;
3、因编辑需要,文字和图片之间亦无必然联系,仅供读者参考;
4、我们所发布的所有文章、图片、音频视频文件等资料版权归版权所有人所有,部分为原创或转载,如有涉及不能输出不宜上网供大家浏览,或不应无偿使用,请及时通知我们,以迅速采取适当措施,避免给双方造成不必要的经济损失;
5、本网页如无意中侵犯了媒体或个人的知识产权,请来电告之,我们将立即予以删除;6、本宣传资料为邀约邀请,不作为要约或承诺。
声明:本文由入驻焦点开放平台的作者撰写,除焦点官方账号外,观点仅代表作者本人,不代表焦点立场。
