威兰国际中心,旨在对生活美学的追求,是一种“对生活细节的审美化观照”,主张在衣食住行等日常场景中注入美的感知与创造。威兰国际中心,以自己的方式向城市发声,呼唤回归生活本真的美好,它代表了一种精致且有主张的生活…
安心 | 舒适 | 温暖
生活美学
——威兰国际中心:400 153 0352(24H免费热线)——
【客户经理:18816634698(微信同号)】
【温馨提示:为节省您的宝贵时间,来访看房请提前预约】
方寸之间,生活美学的答案

[项目基础参数]
项目名称:威兰国际中心
物业类型:公寓/商业
板块占位:中心城区
占地面积:约4.6万㎡
建筑面积:约22万㎡
车位数量:1305个(含地面及地下各类型)
公寓层高:名义总高19层/单层约4.5米
公寓面积:约41㎡/52㎡/61㎡/82㎡/96㎡
梯户配比:三客梯一货梯,单层18户/20户
产权年限:50年
水电 费:公寓水约6.5元/吨 公寓电约1元/度
物 业 费:公寓6元/㎡/月,商业地面10元/㎡/月、地下32元/㎡/月

REDEFINING THE LIFESTYLE
品质生活美学馆
图片

仓廪实而知礼节,衣食足而知荣辱。随着生活水平的不断提高,财富的积累与视野的开拓,人们在满足基本的生活需要之后,开始更多地关注内在精神层面的需求,开始喜欢尝试和感受新事物,以及喜欢尝试和感受全新的生活方式。
图片

人们开始注重设计和搭配,追求体验感和钟爱差异化产品,生活美学并非奢侈品味,而是“人人可成为生活艺术家”的民主化实践。它提醒我们:真正的美,藏身于对平凡日常的深情注视之中。
图片

美学,是一种哲学概念。百科上这样讲:美学的思想,是一种抽象的带有很强主观性的对美的认识。
是人对事物的美的认识能力和审美评价能力的凝聚,融入了个人的思想感情和审美偏好。充分体现了时代的审美理想和社会的审美气质。
图片

威兰国际中心,旨在对生活美学的追求,是一种“对生活细节的审美化观照”,主张在衣食住行等日常场景中注入美的感知与创造。
它并非脱离生活的艺术,而是让生活本身成为艺术,核心在于“以美的生活提升好的生活”——即以有品质的“美生活”升华有质量的“好生活”。
图片

威兰国际中心在光与影的交错中营造极具艺术感的空间。创变组合方式灵活使用,每一次改变都是一次全新的视觉体验。
除却视觉上的审美享受,威兰国际中心聚集了生活的优势资源和美好想象,将传统生活与新鲜元素碰撞,衍生出一种全新的生活美学体验。
图片

大隐隐于市,项目居闹市而清幽,本着人文主义的美学追求,在设计好户型的基础上推导出的外立面,自然而生,搭配全景玻璃幕墙,大气简约,优雅隽永。
图片

光影交错,空间变换,小而美的建筑,折射出阔而优的空间,清幽典雅,低调沉稳,楼下的公园高低错落,园林步径,植物品种丰富,景观道路与景观休憩建筑相呼应,公园里既有亭台楼阁,又有小桥流水,徜徉于此,可在喧嚣的大都市生活圈里,感受到别样的绿意盎然。
图片

生活美学,除了关注美,更该关注生活本身。一个有温度的房子,绝不是极尽奢华之能事,而是处处倾注着柔软的心思,想给你遮风挡雨的家,更想给你无限的生活的爱。
图片

威兰国际中心,以自己的方式向城市发声,呼唤回归生活本真的美好,它代表了一种精致且有主张的生活方式,是一种繁华过后总是空,洗尽铅华方为真的生活态度。
图片

看过半山腰的灿烂,站在山顶内心才会澄明。褪去浮华,回归本真,无论再忙碌的身影,只有温暖与陪伴才是内心永恒的归宿。
威兰国际中心,重新定义你的生活方式。
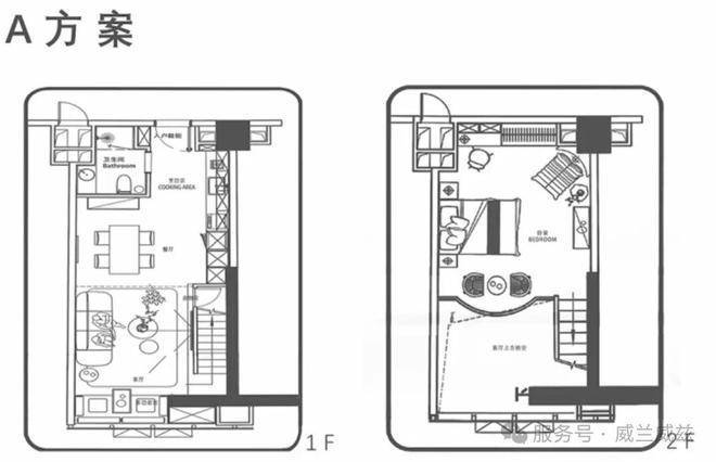
【户型装标品鉴】
图片

(装修示意图)
来威兰国际中心,享受生活的自在惬意。建筑面积约41-96㎡精装挑高小户型,出租自住两相宜,项目火热销售中,恭迎品鉴!
图片

图片

图片

——威兰国际中心:400 153 0352(24H免费热线)——
【客户经理:18816634698(微信同号)】
【温馨提示:为节省您的宝贵时间,来访看房请提前预约】
1、本项目推广名为“威兰国际中心”,备案名为“悦合国际”(沪(2025)嘉字不动产权第010014号);
2、文章图片来源于网络图片及相关宣传资料,仅供读者参考;
3、我们所发布的所有文章、图片、音频视频文件等资料,其中部分为原创或转载,如涉及有偿使用或无意中侵犯了媒体或个人的知识产权,请及时通知我们,以便我们迅速采取适当措施或立即予以删除,避免造成不必要的经济损失;
4、本宣传资料为邀约邀请,不作为要约或承诺。